IDA House è il tipico progetto di ristrutturazione architettonico/tecnologica di un immobile ormai datato, obsoleto e disabitato. L’edificio si trova in pieno centro a Melzo e una sua porzione dà sulla piazza principale con un negozio a piano terra e un balconcino con struttura lapidea al primo piano.
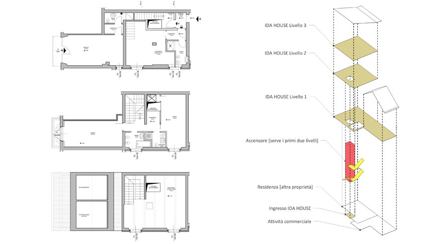
L’intervento complessivamente divide in due parti l’immobile esistente per volontà dei due proprietari: a terra restano la destinazione commerciale e un piccolo monolocale, mentre a piano primo, secondo e sottotetto viene realizzata un’abitazione a norma con le attuali richieste impiantistico energetiche. L’obbiettivo è trasformare un edificio che attualmente consumerebbe circa 300 kWh/mq anno in un edificio che ne consumi tra i 50 e i 70 kWh/mq anno rientrando nelle migliori classificazioni energetiche lombarde.
La particolare ubicazione del lotto, che dà su due piazze (quella principale e quella privata verso nord), implica difficoltà nell’allestimento di cantiere stabile e nella logistica. Si è quindi optato per una tecnica di stratificazione di involucro procedendo solamente dall’interno attraverso l’utilizzo di particolari sistemi isolanti multistrato termoriflettenti di origine aerospaziale disposti in un’intercapedine ottenuta con profili in acciaio zincato e lastre in gesso rivestito.
Sono inoltre previsti nuovi serramenti a taglio termico e vetrocamera con gas nobile in modo da aumentare le prestazioni anche delle porzioni vetrate.
2012
ATTIVITA’ SVOLTA: Progettazione architettonica completa e direzione lavori
COMMITTENTE: Privato
PROGETTO STRUTTURALE: Studio di Ingegneria G.P. Imperadori di Darfo B.T. (BS)
















